This book even contains recommendations for extra supplies that you might need to be able to complete your assignments. Each part should be placed and linked to different parts in particular way.
Cub Cadet Wiring Diagram Wiring Diagram
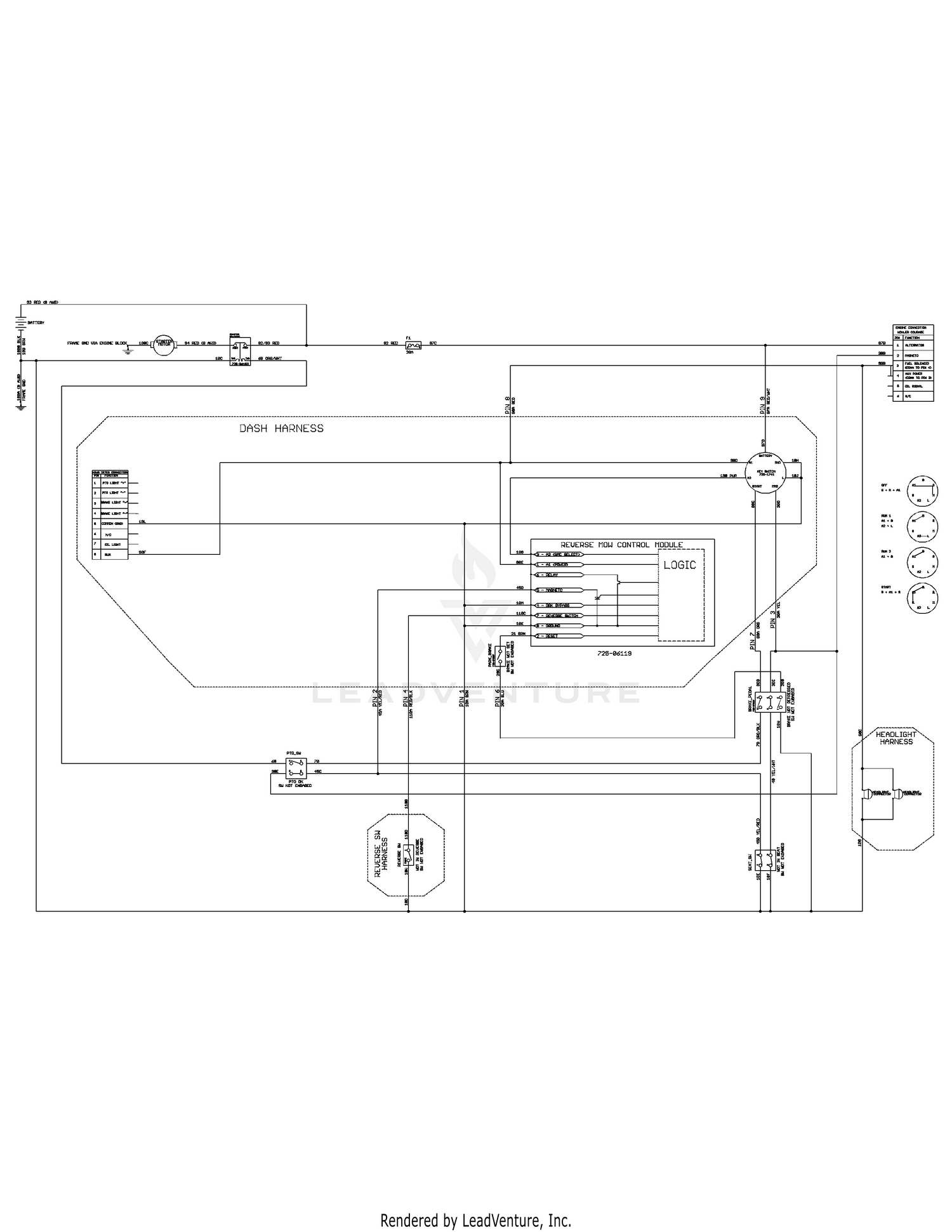
Wiring diagram for cub cadet xt1. Cub cadet wiring diagram cub cadet 100 wiring diagram cub cadet 127 wiring diagram cub cadet 149 wiring diagram every electrical structure is made up of various different components. We have parts diagrams accessories and repair advice to make your tool repairs easy. Please use the following links to contact the engine manufacturers via their web. Cub cadet xt1 enduro series wiring diagram displaying electrical schematic electric pto parts for the cub cadet xt1 lt50 13wqa1cq 13aqa1cq cub cadet xt1 enduro series lawn. More in depth electrical troubleshooting information may also be found in the professional shop manual for the product. Ih cub cadet forum.
For electrical diagrams for specific engines and independent brands see below. Cub cadet 2000 series wiring schematics cub cadet 2130 series 1994 1995 wiring schematic. 2165 wiring diagram cub cadet wiring diagram. Lawn garden tractor parts. Wiring diagram also offers useful recommendations for assignments that might demand some additional gear. Electrical wiring diagrams may be found in the operators manual.
Otherwise the structure wont function as it ought to be. In addition to these cub cadet spec sheets you can also view a number of cub cadet manuals for some of the most popular cub cadet outdoor power equipment. Easy ordering fast shipping and great servicei need the owners manual and wiring diagram for cub cadet fixyai need the owners manual and wiring diagram for cub.














