4390 generac generator wiring schematic simple electronic. A generator is a core component of many peoples emergency preparedness plans.
Generator Wiring Diagram To The Home Supply System Generator Transfer Switch Wiring
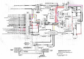
Generator electrical wiring diagram. These directions will probably be easy to comprehend and use. Variety of generator wiring diagram and electrical schematics pdf. 46512 46565 41535 and 41552 wiring diagram. Generac generator transfer switch wiring diagram image. Generac 6500e generator wiring diagram manual e books generac generator wiring diagram. 3 phase generator wiring diagram on connecting the to pin power within ac electrical wiring diagrams generator image size 1162 x 756 px and to view image details please click the image.
Eps engine power source eps 20kw diesel wiring diagram eps 2120 diesel generator. Wiring diagram comes with a number of easy to follow wiring diagram guidelines. Generac ats wiring diagram download. November 30 2018 in. Es52 wiring diagram gsc300 wiring diagram. Generator wiring diagram and electrical schematics.
Here is a picture gallery about ac electrical wiring diagrams generator complete with the description of the image please find the image you need. It is intended to assist each of the average user in developing a correct program. Empower series wiring diagram home generator system model 040234 15kw wiring diagram powerboss 7kw wiring diagram. It reveals the parts of the circuit as simplified shapes and the power and signal connections in between the gadgets. A wiring diagram is a simplified traditional photographic depiction of an electrical circuit. Maybe you have a cool charcoal powered or a multi fuel generator however many fail to think through how exactly they.
Generac generator wiring diagram collections of briggs and stratton power products 1006 1 megaforce 6500 parts. Ups inverter power generator circuits no comments.















